【網の採寸】

「防球ネット」と「防鳥ネット」でも採寸をするときの考え方は同じ?

基本的には同じです!あとは取付方法や、取付イメージによってかわりますよ
基本的には、取付をしたい箇所の内々の寸法を採寸する形になります。
ネットは布や紙と異なり、mm単位、1cm単位での作成は難しいものになります。
ネットは15mmや25mmといった目合いによって構成されているため、その目合いの数と、
周囲加工を加えた場合の周囲加工部分の厚みによって寸法が決まります。
クラークではいただいた寸法を満たした形でネットを作成させていただいております。
これは「ぴったりの取付にしたいのであらかじめ小さめのサイズで作成する」という場合、
実際には取付箇所をネットで覆えない場合があるためです。
ネットは基本的に、大き目な場合は余った部分を取付けの際につまんで調整し、
たるませずに固定するといった事が可能です。
まずは取付箇所の内々のちょうどの寸法をおしらせください。

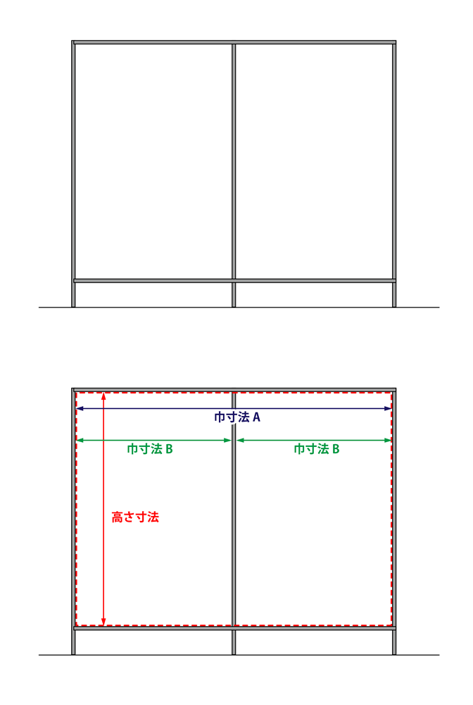
■防球ネット・棚ネット・階段手摺など、取付ける箇所の枠がある場合
枠の内々のサイズの採寸をお願いいたします。
左図のように、間にも柱がある場合、この箇所で分割して作成することもできます。
その場合は巾寸法Bのように柱を除いた寸法の採寸をお願いいたします。

■防鳥ネット・防犯ネット・仕切りネットなど、取付ける箇所の枠がない場合
取り付ける箇所(ネットで覆いたい箇所)の内々のサイズの採寸をお願いいたします。
左図のように上部は庇部分からではなく、横に渡している鉄骨にワイヤーやクランプを
使って固定し、左右は縦の鉄骨に固定するといった場合の採寸です。
防犯ネットの場合は開閉、取り外し用の部材とパターンがあるため、その分を
加味して採寸する必要があります。
(開閉できるカーテン式の防鳥ネット、仕切りネット、防球ネットも同様です)
上記のパターンに該当しない場合…
【お問合せ】からお問合せをお願いいたします。
















